| Комплектация | Закрытый контур |
Теплый контур |
Дом с отделкой |
|---|---|---|---|
| Доставка 50км от КАД, МКАД | |||
| Сборка на участке | |||
| Технический надзор | |||
| Проектная документация (АР) | |||
| Ежедневный фото-видео отчет | |||
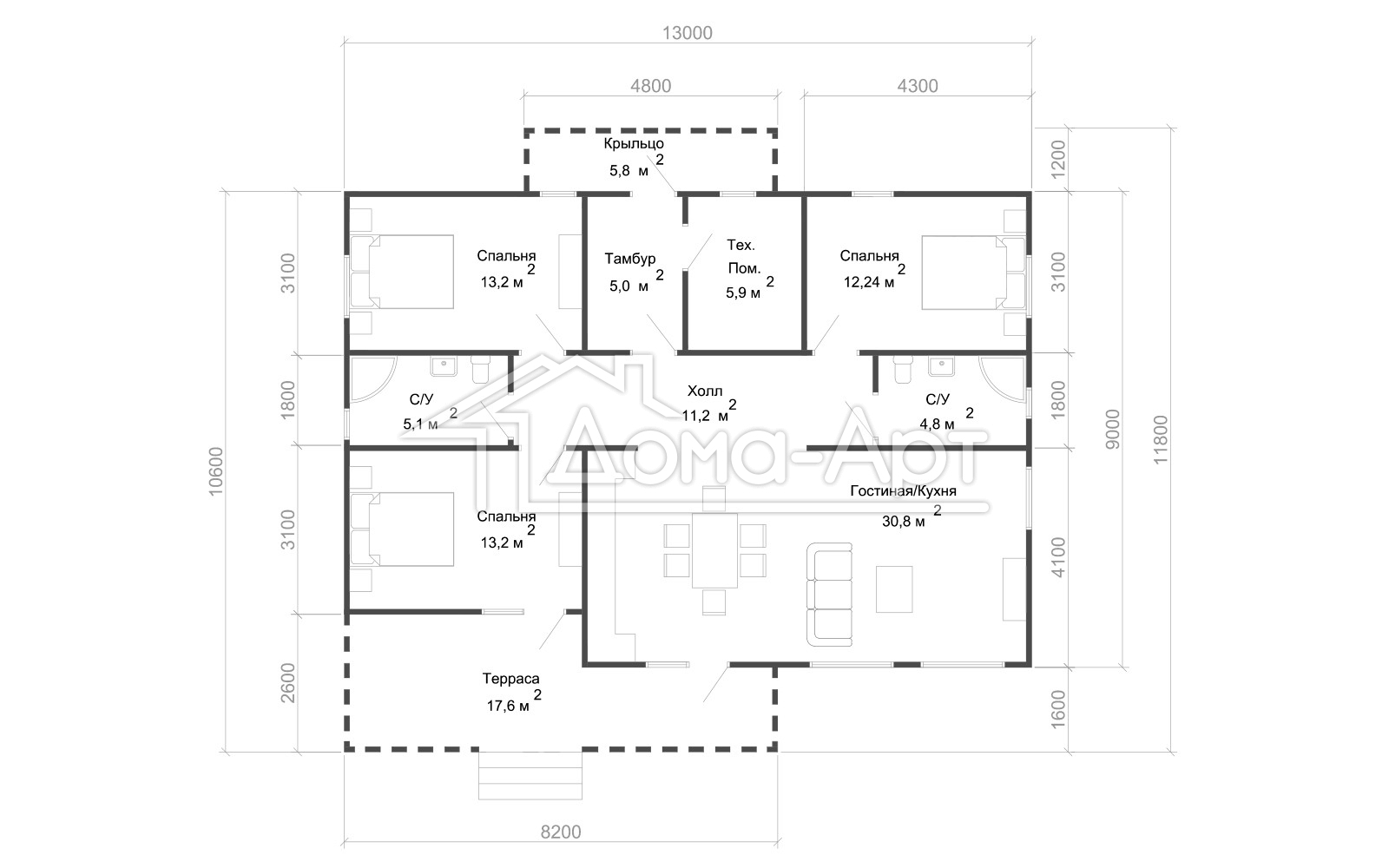
| Основание | |||
| Сухой обрезной брус 150×150,150×200мм | |||
| Пол 1 этажа | |||
| Лаги - сухая калиброванная доска 40×150мм, 40×200мм | |||
| Пол 2 этажа | |||
| Балки - сухая калиброванная доска 40×150мм, 40×200мм | |||
| Силовой каркас | |||
| Вертикальные шаговые стойки - сухая калиброванная доска 40×150мм | |||
| Укосины - сухая калиброванная доска 40×150мм | |||
| Опорные ригеля - сухая калиброванная доска 40×150мм | |||
| Угловые стойки и верхняя обвязка стен, мауэрлат — сухой обрезной брус 100×150мм,150×150мм | |||
| Гидроветрозащита-Rockwool | |||
| Кровля | |||
| Стропильные ноги - сухая калиброванная доска 40×150мм, 40×200мм | |||
| Ригеля - сухая калиброванная доска 40×150мм | |||
| Коньковый прогон - сухая калиброванная доска 40×150мм | |||
| Контробрешетка вентиляционный зазор-сухой обрезной брусок 45×45мм | |||
| Обрешетка - сухая калиброванная доска 25×100мм | |||
| Гидроизоляционные подкровельные пленки Tyvek Soft | |||
| Покрытие — металлочерепица Grand Line 0.5мм | |||
| Утепление | |||
| Наружние стены-плитный утеплитель Rockwool Лайт Баттс 150мм | |||
| Перегородки-плитный утеплитель Rockwool Лайт Баттс 100мм | |||
| Пол 1ого и 2ого этажа плитный утеплитель Rockwool Лайт Баттс 150мм | |||
| Потолок |
|||
| Наружняя отделка | |||
| Сухая имитация бруса 22х145мм | |||
| Гидроветрозащита-Rockwool | |||
| Контррейка-вентиляционный зазор сухой обрезной брусок 50×50мм | |||
| Внутренняя отделка | |||
| Сухая имитация бруса − 22×145мм | |||
| Контр.рейка вентиляционный зазор- сухой брусок 20×40мм | |||
| Пароизоляция - Rockwool для стен, полов и скатов. Проклейка швов скотчем. | |||
| Лестница-тетива сухая строганная доска 80×200мм с балясинами и перилами | |||
| Пол | |||
| ВДСПШ Quick Deck Professional 16мм по обрешетке | |||
| Обрешетка строганный брусок 50х50мм | |||
| Черновой пол - сухая калиброванная доска 25×100мм | |||
| Двери | |||
| Входная уличная дверь с терморазрывом BERSERKER | |||
| Межкомнатные двери Velldoris экошпон серии Topa Life,Duplex | |||
| Окна | |||
| Двух камерные стеклопакеты Ivaper 62 с поворотно-откидным механизмом,откосами и отливами | |||
| Стоимость |
1 940 000 руб. |
По запросу |
По запросу |


