МСК
8 (906) 202-55-40
СПБ
8 (921) 705-59-54
РФ
8 (800) 201-59-54

Наши проекты

Каркасные
коттеджи

Подробнее

Каркасные
дачные дома

Подробнее

Брусовые
дачные дома

Подробнее

Каркасные бани

Подробнее

Бани из бруса

Подробнее

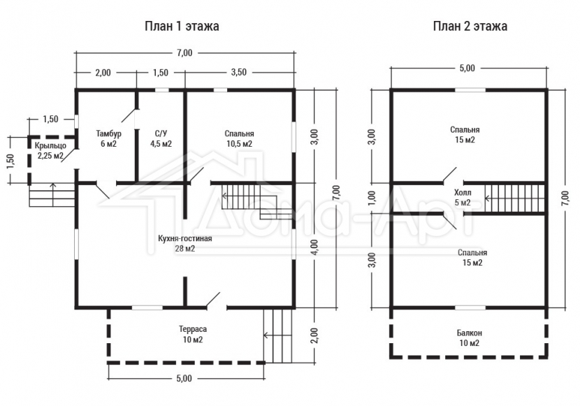
Проект Д-28

90 мм.
140 мм.
190 мм.
Сруб дома "Под усадку"
По запросу
По запросу
По запросу
Дом с отделкой
По запросу
По запросу
По запросу
Габариты
7х9
Общая площадь
106.00 м²
Количество комнат
3
Высота 1 этажа
2.5 м
Высота 2 этажа
2.4м
Санузлов
1
Вы можете добавить или перенести окно, дверь,
перегородку. Наши специалисты помогут создать ваш
индивудальный проект по вашим пожеланиям
  Сруб дома "Под усадку" Дом с отделкой
Перегородки 1 этаж Перегородочный брус 90×140 мм. Перегородочный брус 90×140 мм.
Перегородки 2 этаж - каркасные
Пароизоляция Изоспан В - Пол 1 этажа,стены 2 этажа,перекрытие и мансарда.
Ветрогидрозащита Изоспан АМ Кровля Пол 1 этажа, Кровля
Подшивка потолков - Имитация бруса камерной сушки 19×140 мм.
Межэтажное перекрытие шаг 590 мм. Доска 40×150 мм. Доска 40×150 мм.
Окна - ПВХ стеклопакеты
Входная дверь - Металическая
Межкомнатные двери - филенчатые
Ройки (обсада) - +
Стропильная система Доска 40×100,40×150мм Доска 40×100,40×150мм
Контррейка под кровлю Брусок 40×50 мм.
Контррейка под отделку фронтонов Брусок 20×50 мм.
Обрешетка Обрезная доска 25×150мм
Кровельное покрытие Ондулин (цвет на выбор)
Фронтоны, поднебесники (Карнизы) Подшиваются имитацией бруса камерной сушки 19×140 мм.
Мансарда (2 этаж) - Отделывается имитацией бруса камерной сушки 19×140 мм.
Внутренние углы комнат - Отделываются плинтусом
Внешние углы дома - Подшиваются вагонкой хвойных пород.
Лестница Тетива — строганный брус 90×140мм, поручень — деревянный фигурный, балясины и стартовые столбы точеные фигурные, ступени строганные 40×200мм.
Ступени у входа + +
Сборка дома + +
Доставка материала Доставка 50 км от КАД,МКАД

Фундамент

Свайно-винтовой фундамент
L - 2,5м., D - 108 мм.

Количествой свай:
24

Цена:
96 000 руб.
Фундамент на Ж/Б сваях
L - 3 м., D - 150х150 мм.

Количествой свай:
24

Цена:
108 000 руб.
Монолитная плита
Толщина: 200 мм.


Цена:
682 000 руб.

Дополнительные опции

Покраска фасадов дома и всех доборных элементов финской краской Tikkurila в заводских условиях
650 руб. / кв.м
Установка водосточной системы Docke
1850 руб. / пог.м
Установка системы снегозадержания
1750 руб. / пог.м
Отделка наружных стен дома финскими ветро теплоизоляционными плитами ISOPLAAT 12 мм.
1120 руб. / кв.м
Замена террасной доски на лиственницу
3000 руб. / кв.м
Отделка фундамента цокольными панелями с металлическими отливами
2000 руб. / пог.м
Внешняя отделка дома - сайдинг Docke
850 руб. / кв.м
Коммуникации (отопление, электричество, водоснабжение)
По запросу
Замена кровельного материала (ондулин) на металлочерепицу
1680 руб. / кв.м
Антисептирование
180 руб./кв.м
Бытовка 2х3 (если отсутствует временное жилье для строителей)
25 000 руб.
Аренда генератора
20 000 руб.
Заявка на строительство
Максимальный размер файла: 20 МБ.
Разрешённые типы файлов: gif jpg jpeg png txt rtf html pdf doc docx odt ppt pptx odp xls xlsx ods xml.
Максимальный размер файла: 20 МБ.
Разрешённые типы файлов: gif jpg jpeg png txt rtf html pdf doc docx odt ppt pptx odp xls xlsx ods xml.
Максимальный размер файла: 20 МБ.
Разрешённые типы файлов: gif jpg jpeg png txt rtf html pdf doc docx odt ppt pptx odp xls xlsx ods xml.

Вы можете добавить или перенести окно, дверь, перегородку. Наши специалисты помогут создать ваш индивудальный проект по вашим пожеланиям

Записаться на просмотр

Если Вы не смогли найти ответ на свой вопрос на нашем сайте, позвоните нам по телефону: +7 (906) 202-55-40, или напишите в эту форму связи: