МСК
8 (906) 202-55-40
СПБ
8 (921) 705-59-54
РФ
8 (800) 201-59-54

Наши проекты

Каркасные
коттеджи

Подробнее

Каркасные
дачные дома

Подробнее

Брусовые
дачные дома

Подробнее

Каркасные бани

Подробнее

Бани из бруса

Подробнее

Проект Д-16

Дачный дом 7х8 в 1.5 этажа с эркером
Общая площадь: 
91.00 м²
Брус 90х140 Брус 140х140 Брус 140х190 Каркасный вариант
Сруб дома "Под усадку"
По запросу
По запросу
По запросу
Дом "Стандарт"
По запросу
По запросу
По запросу
По запросу
Дом "Комфорт"
По запросу
По запросу
По запросу
По запросу
Дом "Комфорт+"
По запросу
По запросу
По запросу
По запросу
По желанию клиента брус естественной влажности можно заменить на брус камерной сушки

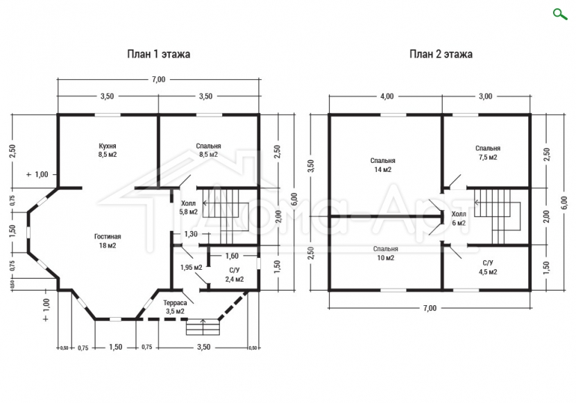
Планировка этажей

Вы можете добавить или перенести окно, дверь,
перегородку. Наши специалисты помогут создать ваш
индивудальный проект по вашим пожеланиям

Базовая комплектация

  «Под Усадку» «Стандарт» «Комфорт» «Комфорт+»
Фундамент На выбор. Рассчитывается индиуидуально На выбор. Рассчитывается индивидуально На выбор. Рассчитывается индивидуально На выбор. Рассчитывается индивидуально
Основание Брус 150×150 мм Брус 150×150 мм Брус 150×150 мм Брус 150×150 мм
Количество рядов основания 1 1 1 2
Стены сруба Профилированный брус 90×140 мм. / 140×140 мм. / 190×140 мм. (Согласно выбранной комплектации)
Высота 1-го этажа 2,3 м. (17 рядов) 2,3 м. (17 рядов) 2,4 м. (18 рядов) 2,4 м. (18 рядов)
Высота 2-го этажа 2,2 м. 2,2 м. 2,3 м. 2,3 м.
Межвенцовый утеплитель Льноджутовое полотно
Сборка сруба Гвозди 200 мм Деревянный нагель
Соединение углов сруба «Пол дерева» «Пол дерева» «Теплый угол» «Теплый угол»
Половые лаги (шаг 590-600 мм) Доска 40×150 мм. Доска 40×150 мм. Доска 40×150 мм. Брус 100×150 мм.
Черновые полы - Обрезная доска 20×100 мм., 1 сорт
Чистовые полы (1,2 этаж) - Шпунт 27 мм. Шпунт 36 мм., сухой Шпунт 36 мм., сухой
Утепление пола, потолка - 50 мм., «KNAUF» 100 мм., «KNAUF» 150 мм., «KNAUF»
Утепление мансарды - - 100 мм., «KNAUF» 150 мм., «KNAUF»
Перегородки 1 этаж Перегородочный брус 90×140 мм. Перегородочный брус 90×140 мм. Перегородочный брус 90×140 мм. Перегородочный брус 90×140 мм.
Перегородки 2 этаж - каркасные каркасные каркасные
Пароизоляция «Ondutis» - Пол 1 этажа, Перекрытие Пол 1 этажа, Перекрытие, Мансарда Пол 1 этажа, Перекрытие, Мансарда
Ветрогидрозащита «Ondutis» Кровля Пол 1 этажа, Кровля Пол 1 этажа, фронтоны, Кровля Пол 1 этажа, фронтоны, Кровля
Подшивка потолков - Вагонка камерной сушки Вагонка камерной сушки Вагонка камерной сушки
Межэтажное перекрытие (шаг 900-1000 мм) Доска 40×150 мм. Доска 40×150 мм. Доска 40×150 мм. Брус 100×150 мм.
Окна - Деревянные окна двойного остекления ПВХ стеклопакеты
Входная дверь - филенчатая металлическая металлическая
Межкомнатные двери - филенчатые филенчатые филенчатые
На филенчатые двери фурнитура не предусмотрена, двери отделываются наличником
Ройки (обсада) - + + +
Стропильная система Доска 40×100 мм. Доска 40×100 мм. Доска 40×100 мм. Доска 40×150 мм.
Контррейка под кровлю Брусок 40х50 мм.
Контррейка под отделку фронтонов Брусок 20х50 мм.
Обрешетка Обрезная доска 20×100 мм.
Кровельное покрытие Ондулин (цвет на выбор)
Фронтоны, поднебесники (Карнизы) Подшиваются имитацией бруса 17х120х90мм камерной сушки, ширина свесов 350-400 мм.
Мансарда (2 этаж) - Подшивается вагонкой камерной сушки (по всему периметру)
Внутренние углы комнат - Отделываются плинтусом
Внешние углы дома - Подшиваются вагонкой хвойных пород
Лестница Тетива - строганный брус 90х140мм, поручень — деревянный фигурный, балясины и стартовые столбы точеные фигурные, ступени строганные 40х200мм.
Ступени у входа + + + +
Сборка дома + + + +
Доставка материала 500 км. входит в стоимость, свыше 85 рублей/км.

Комплектация

"Стандарт" 100 мм.

"Комфорт" 150 мм.

"Комфорт+" 200 мм.

Фундамент

На выбор. Рассчитывается индивидуально

На выбор. Рассчитывается индивидуально

На выбор. Рассчитывается индивидуально

Основание из бруса

150×150 мм.
1 ряд

150×150 мм.
1 ряд

150×200 мм.
2 ряда

Лаги пола из бруса

40×100 мм. шаг не более 590 мм.

40×150 мм. шаг не более 590 мм.

50×200 мм.шаг не более 590 мм.

Черновой пол

Обрезная доска 20×100 мм., настилается по бруску 40×50 мм.

Обрезная доска 20×100 мм., настилается по бруску 40×50 мм.

Обрезная доска 20×100 мм., настилается по бруску 40×50 мм.

Стены каркасные из доски

40×100 мм.

40×150 мм.

40×200 мм.

Второй этаж каркасно-щитовая конструкция

40×100 мм.

40×150 мм

40×200 мм.

Перегородки (первый этаж)

40×100 мм.

40×100 мм.

40×100 мм.

Утепление стен / пола / потолка / мансарды Плиты Rockwool, 100 мм. Плиты Rockwool, 150 мм. Плиты RockWool, 200 мм.

Межэтажные перекрытия (потолочные лаги)

из доски 40×100 мм , шаг не более 590 мм.

из доски40×150 мм , шаг не более 590 мм.

из доски 50×200 мм ,шаг не более 590 мм.

Форма крыши

Согласно плану дома

Согласно плану дома

Согласно плану дома

Стропильная система

Доска 40×100 мм, шаг не более 590 мм

Доска 40х150 мм, шаг не более 590 мм

Доска 40×200 мм, шаг не более 590 мм

Фронтоны

Доска 40×100 мм

Доска 40×150 мм

Доска 40×150 мм

Обрешетка

Обрезная доска 20×100 мм, шаг 300-350 мм.

Обрезная доска 20×100 мм, шаг 300-350 мм.

Обрезная доска 20×100 мм, шаг 300-350 мм.

Покрытие кровли

Ондулин (цвет на выбор: бордовый, зеленый, коричневый).

Ондулин (цвет на выбор: бордовый, зеленый, коричневый).

Ондулин (цвет на выбор: бордовый, зеленый, коричневый).

Гидроизоляция стен, кровли

Мембранные пленки Изоспан «А»

Мембранные пленки Изоспан «А»

Мембранные пленки Изоспан «А»

Внутренняя отделка Вагонка 16х96мм Вагонка 16х96мм Вагонка 16х96мм

Наружная отделка

Внешние стены дома обшиваются имитацией бруса толщиной 22 мм. (камерной сушки). Фронтоны и все торцевые части дома ( свесы крыши, карнизы, наружные углы дома) обшиваются вагонкой класса «В»

Внешние стены дома обшиваются имитацией бруса толщиной 22 мм. (камерной сушки). Фронтоны и все торцевые части дома ( свесы крыши, карнизы, наружные углы дома) обшиваются вагонкой класса «В»

Внешние стены дома обшиваются имитацией бруса толщиной 22 мм. (камерной сушки). Фронтоны и все торцевые части дома ( свесы крыши, карнизы, наружные углы дома) обшиваются вагонкой класса «В»

Высота потолков (в чистовом размере)

Первый этаж 2,4 м.; второй этаж 2,2 м.

Первый этаж 2,4 м.; второй этаж 2,3 м.

Первый этаж 2,5 м.; второй этаж 2,3 м.

Входные двери Металлическая Металлическая Металлическая, утепленная
Окна Деревянные однокамерные с двойным остелклением (имитация стеклопакета) ПВХ, белого цвета

Крыльцо и терраса

Форма и размер в зависимости от проекта дома. Полы — шпунт 36 мм, потолок — вагонка класса «В», стойки из бруса 100×100 мм.

Форма и размер в зависимости от проекта дома. Полы — шпунт 36 мм, потолок — вагонка класса «В», стойки из бруса 100×100 мм.

Форма и размер в зависимости от проекта дома. Полы — шпунт 36 мм, потолок — вагонка класса «В», стойки из бруса 100×100 мм.

Сборка дома

Включена в стоимость

Включена в стоимость

Включена в стоимость

Доставка

Доставка включена в стоимость до МКАД и КАД. Далее — 85 рублей/км.

Доставка включена в стоимость до МКАД и КАД. Далее — 85 рублей/км.

Доставка включена в стоимость до МКАД и КАД. Далее — 85 рублей/км.

Дополнительные опции

Фундамент свайно-винтовой: 
165000
Фундамент на железобетонных сваях: 
180000
Водосточная система: 
42000
Замена кровельного материала (ондулин) на металлочерепицу: 
66000
Замена деревянных окон на пвх: 
60000
Антисептирование: 
34000
Бытовка 2х3 (если отсутствует временное жилье для строителей): 
18000
Заявка на строительство
Максимальный размер файла: 20 МБ.
Разрешённые типы файлов: gif jpg jpeg png txt rtf html pdf doc docx odt ppt pptx odp xls xlsx ods xml.
Максимальный размер файла: 20 МБ.
Разрешённые типы файлов: gif jpg jpeg png txt rtf html pdf doc docx odt ppt pptx odp xls xlsx ods xml.
Максимальный размер файла: 20 МБ.
Разрешённые типы файлов: gif jpg jpeg png txt rtf html pdf doc docx odt ppt pptx odp xls xlsx ods xml.

Вы можете добавить или перенести окно, дверь, перегородку. Наши специалисты помогут создать ваш индивудальный проект по вашим пожеланиям

Записаться на просмотр

Если Вы не смогли найти ответ на свой вопрос на нашем сайте, позвоните нам по телефону: +7 (906) 202-55-40, или напишите в эту форму связи: